繁體中文 | 联系我们
 
服务 热线:400-013-5663
电 话:021-52121993
销售部:白小姐18101869830 (微信同号) 15026605632
技术部:刘先生:13918967239(微信同号)
邮 箱:lyslxx@163.com
地 址:上海市普陀区礼泉路700弄高尚领域38号1505室
 代理品牌 展开
 工程案例 展开
 意大利优尼瓦斯燃烧器 UNIGAS 展开
 意大利意科法兰燃烧器ECOFLAM 展开
 德莱斯勒燃烧器(DREIZLER) 展开
 德国威索燃烧器(WEISHAUPT) 展开
 意大利利雅路燃烧器(RIELLO) 展开
 瑞典百通燃烧器(BENTONE) 展开
 意大利百得燃烧器(BALTUR) 展开
 意高燃烧器(ECOFLAM) 展开
 国产燃烧器 展开
 油泵系列 展开
 油嘴系列 展开
 程控器及底座 展开
 火焰探测器 展开
 点火变压器 展开
 燃油过滤器 展开
 回油调节阀 展开
 燃油电磁阀/线圈 展开
 风门执行器/伺服马达 展开
 燃气压力开关 展开
 燃气捡漏装置 展开
 燃气电磁阀 展开
 燃气过滤器/调压阀 展开
 软水处理器 展开
 点火电极/火焰盘及其他配件 展开
 烧嘴 展开
产品中心
点击查看大图
分类: 贵诺燃烧器(CUENOD) - 燃气燃烧器
名称: NC9GX燃气燃烧器(Cuenod)
品牌: 贵诺(CUENOD)
型号:
价格:

详细说明
NC9GX燃气燃烧器

品牌:CUENOD(贵诺)

产地:法国

 产品描述
CUENOD贵诺燃烧器技术,满足顾客的各种需求。

贵诺燃烧器在这一专业领域有着大量的经验。我们已经研发出新一代的高效率,高精确和可靠性能的燃烧器。

这些燃烧器都是按照欧洲燃烧器标准EN676研究和开发。CUENOD贵诺燃烧器都是严格按照AFAQISO9002质量人证标准生产制造。

所有归若燃烧器都CE认证,满足各项欧洲相关标准,包括CE锅炉能效标准92/42/EEC

燃烧器进风系统:高性能循环RHP®系统 燃烧头:低氮氧化合物Low Nox 燃烧器设定:多功能控制面板
现代锅炉技术和大量的发热设备的需求,使我们研发出新型的燃烧器进风系统,以满足燃烧器适应于各种使用环境。

该燃烧器进风系统配备有高性能的贵诺专利循环(RHP®)系统:

  • 启动时燃烧快速稳定
  • 运行时超静音(隔绝的进风系统)
  • 减少对于烟囱引力波动的敏感性

RHP®系统和先进的出风口风门调节系统,确保了进风的持续稳定。

利于环保的燃烧头设计,这种低氮氧化合物Low Nox燃烧头能够:
  • 降低污染排放,特别是氮氧化合物Nox排放,根据锅炉型号,降到80-100mg/kWh
  • 根据锅炉情况,热效率高达91%94%
控制面板集成了所有控制和显示装置,极大方便了顾客检查和设定。
  1. 风量调节

进风挡板设计为线性调节:风量根据挡板的角度成比例增加,180°调节范围,确保了调节的精确性。

  1. 调整燃烧头

旋流片的位置和燃烧头端部的相对位置,通过一个标尺,在控制面板显示。贵诺获得这项技术的专利。

维护时,设定值可轻易从标尺读出。

  1. 火焰观察口
  2. 燃烧风压测口
  3. 电离电流测量桥路
启动与调试 MDE®系统:运行参数记录 燃烧器维护:最佳效果
RHP®系统极大降低了启动时突震,确保任何锅炉启动时平稳无震动。
  • 该燃烧器通过一个夹紧法兰安装于锅炉面板,适用于已有的或新安装的锅炉
  • 燃烧头的伸出长度可以调节以适应不同的锅炉炉膛
  • 多头电气连接插头,避免了接线错误
  • 该燃烧器设计为使用H类天然气:20mbarL类天然气:25mbar,或者液化石油气:37mbar
  • 燃气组合阀可安装于燃烧器左侧或者右侧,或者上侧(机体大头在下),或者下侧(机体大头在上)。
该燃烧器装有创新的运行系统,可以随时查看运行记录。

该系统提供两种类型参数:

  1. “即时”信息
  • 燃烧器启动周期
  • 供电测量值
  • 火焰信号测量值
  1. “储存”信息
  • 燃烧器运行参数,包括总运行时间
  • 使用程序状况

这些信息,即时可以查看,可以通过装有CUENODM软件的手提电脑读取信息,然后这些信息可以发送到运行系统中,便于维护。

  • 先进的外壳设计,保证了进风系统,燃烧装置,不同的电气元件和机械元件都极易检修
  • 所有电气连接采用插头式连接
  • 工厂出厂设定提供了初始状态下最佳的参考设定。在实际使用中根据不用的功率要求,需要进一步对燃烧器进行精确调整
  • 外壳保护了安全装置和设定值,它还起了防止断电的作用
 型号表
流量/功率 CE 49 AS 2386 CE 49 BN 3690
NC4GX107/8 NC6GX107/8 NC9GX107/8
最小 最大 最小 最大 最小 最大
燃烧器 kW 14.5 40 40 55 45 90
锅炉 kW 13.3 36.8 36.8 50.6 41.4 83
额定燃气流量(m3/h) 天然气H Hi=9.45kWh/m3 1.53 4.23 4.23 5.82 4.76 9.52
天然气L Hi=8.13kWh/m3 1.78 4.92 4.92 6.77 5.53 11
液化石油气 Hi=24.44kWh/m3 0.59 1.64 1.64 2.25 1.84 3.70
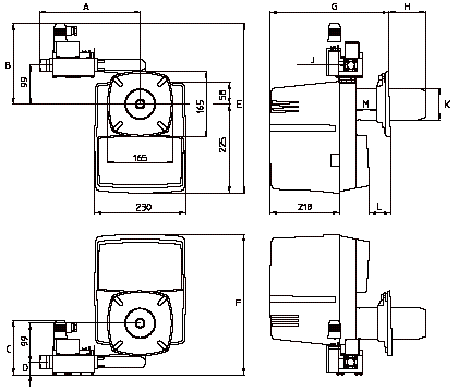
 功率图 尺寸图

型号

A

B

C

D

E

F

G

H

J

K

L

M

NC4GX107/8(CG10)

254

204

137

32

428

355

297min

337max

70min

110max

Rp1/2

Ø80

21min

61max

48

NC6GX107/8(CG10)

254

204

137

32

428

355

297min

337max

70min

110max

Rp1/2

Ø80

21min

61max

48

NC9GX107/8(CG15)

266

240

179

38

465

404

300min

355max

70min

138max

Rp3/4

Ø90

15min

75max

52

包装:
该燃烧器和外壳一个包装发运,包括以下内容:
* 一包安装附件
* 锅炉连接法兰
* 文件,包括:
 ----操作手册
 ----电路图
 ----质量保证书
 ----燃烧器机体底朝上安装时的铭牌帖纸
 ----燃气组合阀

 
 

版权所有 © 2010 上海淼勇贸易有限公司 ICP备案:沪ICP备18029193号-1   设计维护星网科技
服务 热线:400-013-5663  电话:021-52121993 传真:021-36320926 联系人:刘先生 18602191896 13918967239 / 白小姐 18101869830
地址:上海市普陀区礼泉路700弄高尚领域38号1505室