繁體中文 | 联系我们
 
服务 热线:400-013-5663
电 话:021-52121993
销售部:白小姐18101869830 (微信同号) 15026605632
技术部:刘先生:13918967239(微信同号)
邮 箱:lyslxx@163.com
地 址:上海市普陀区礼泉路700弄高尚领域38号1505室
 代理品牌 展开
 工程案例 展开
 意大利优尼瓦斯燃烧器 UNIGAS 展开
 意大利意科法兰燃烧器ECOFLAM 展开
 德莱斯勒燃烧器(DREIZLER) 展开
 德国威索燃烧器(WEISHAUPT) 展开
 意大利利雅路燃烧器(RIELLO) 展开
 瑞典百通燃烧器(BENTONE) 展开
 意大利百得燃烧器(BALTUR) 展开
 意高燃烧器(ECOFLAM) 展开
 国产燃烧器 展开
 油泵系列 展开
 油嘴系列 展开
 程控器及底座 展开
 火焰探测器 展开
 点火变压器 展开
 燃油过滤器 展开
 回油调节阀 展开
 燃油电磁阀/线圈 展开
 风门执行器/伺服马达 展开
 燃气压力开关 展开
 燃气捡漏装置 展开
 燃气电磁阀 展开
 燃气过滤器/调压阀 展开
 软水处理器 展开
 点火电极/火焰盘及其他配件 展开
 烧嘴 展开
产品中心
点击查看大图
分类: 德国威索燃烧器(WEISHAUPT) - W系列燃烧器
名称: WL20燃油燃烧器(weishaupt)
品牌: 威索(WEISHAUOT)
型号:
价格:

详细说明
WL20燃油燃烧器

品牌:-weishaupt-(威索)

产地:德国

 产品描述
W系列的所有型号燃烧器中的部件均紧密结合在一个小巧的空间内。燃料与空间的调节装置显而易见且易于维护。通过最新的技术为其配置的数字化程序控制器,可以使各项设定的功能及燃料与空气量的配合达到更精确的水平。

该系列燃烧器的功率范围始于12千瓦,最大可达570千瓦。在不同的型号中,功率调整的方式可分为一级或二级、二级滑动或比例调节。所有型号的燃烧器均符合相应的德国工业标准(DIN)及欧洲标准(EN),且均经样机检测认可。

 型号表
型号 版本号 运行模式 出力范围kW 电机功率kW 重量kg 订货号

标准型

WL10/2-D 一段火 35-70 0.13 14.0 24111122
WL10/2-D 一段火带伺服马达 35-70 0.13 14.0 24111120
WL10/2-D Z 二段火 35-70 0.13 14.0 24111123
WL10/3-D 一段火 50-90 0.13 14.0 24111031
WL10/3-D 一段火带伺服马达 50-90 0.13 14.0 24111030
WL10/3-D Z 二段火 50-90 0.13 14.0 24111032
WL20/1-C 一段火 50-120 0.25 20.0 24121021
WL20/1-C 一段火带伺服马达 50-120 0.25 20.0 24121011
WL20/1-C Z 二段火 50-120 0.25 20.0 24121321
WL20/2-C 一段火 70-180 0.25 20.0 24121022
WL20/2-C 一段火带伺服马达 70-180 0.25 20.0 24121012
WL20/2-C Z 二段火 70-200 0.25 20.0 24121322
WL30-C Z 二段火 72-330 0.42 28.0 24131321
WL40-C Z 二段火 145-570 0.62 37.0 24140321

Low Nox低氮氧化合物型

WL10/1-D1LN 1LN 一段火 30-55 0.13 14.0 24111015
WL10/2-D1LN 1LN 一段火 50-70 0.13 14.0 24111025
WL20/1-C1LN Z-1LN 二段火 55-130 0.25 20.0 24121325
WL30-Z-C4LN 4LN 二段火 72-215 0.42 28.0 24131326
WL40-Z-A1LN 1LN 二段火 120-355 0.62 37.0 24140325
 参数表

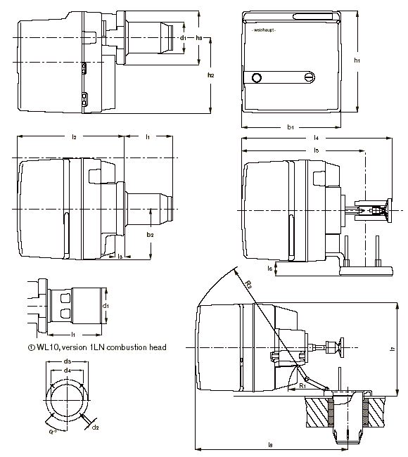
 尺寸图

型号

I1

I2

I3

I4

I5

I6

I7

I8

b1

b2

b3

h1

h2

h3

h4

d1

d2

d3

d4

d5

d6

R1

R2

WL10/2-D

137

345

32

476

398

51

330

165

353

270

165

99

M8

150–170

110

WL10/3-D

140

345

32

476

398

51

330

165

353

270

165

108

M8

150–170

110

WL20/1-C

144

393

31

525

434

73

358

179

376

285

182

183

108

M8

170

130

123

150

WL20/2-C

174

393

31

558

434

73

358

179

376

285

182

183

120

M8

170

130

123

150

WL30Z-C

169

480

40

30

600

62

460

600

420

226

100

460

342

127

M8

170–186

130

158

490

45

WL40Z-A

235

577

40

30

615

72

480

615

450

245

108

480

360

151

M10

186–200

160

185

570

45

WL10/1-D1LN

-

345

27

476

398

51

330

165

353

270

165

100

M8

150–170

110

WL10/2-D1LN

-

345

27

476

398

51

330

165

353

270

165

108

M8

150–170

110

WL20/1-C1LN

144

393

31

532

434

73

358

179

376

285

182

183

108

M8

170

130

123

150

WL30Z-C4LN

169

480

40

30

600

62

460

600

420

226

100

460

342

127

M8

170–186

130

158

490

45

WL40Z-A1LN

235

577

40

30

615

72

480

615

450

245

108

480

360

151

M10

186–200

160

185

570

45

 
 

版权所有 © 2010 上海淼勇贸易有限公司 ICP备案:沪ICP备18029193号-1   设计维护星网科技
服务 热线:400-013-5663  电话:021-52121993 传真:021-36320926 联系人:刘先生 18602191896 13918967239 / 白小姐 18101869830
地址:上海市普陀区礼泉路700弄高尚领域38号1505室